设计师及作家格雷厄姆·希尔(Graham Hill)曾经的回答是40㎡,
现在竟再缩减成了33㎡。
就我个人来说,我花了15年时间、一场伟大的爱情和许多次旅游,才最终处理掉所有那些我曾收集的不必要的东西,从而以更少的物品,来体验一种更大、更好、更加富足的生活。
——格雷厄姆·希尔《简单生活之美》
曾经是LifeEdited.com和TreeHugger.com的创始人,格雷厄姆·希尔靠卖掉自己创立的互联网公司成为世俗眼中的富豪。
但历尽千帆后,他内心的向往从无穷的物质转变成内心平实的富有。
他食素、住小房子、演讲,开始践行淡于物质的生活。
|
|
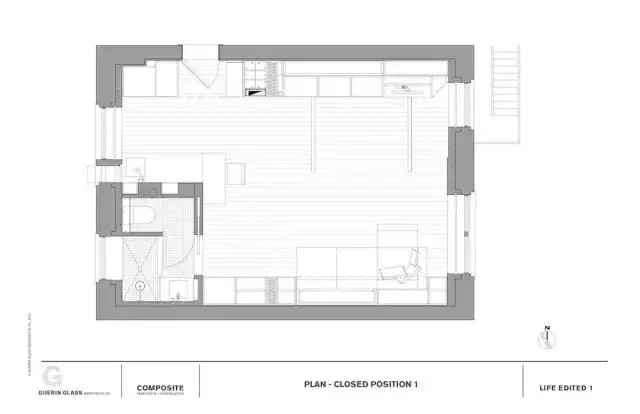
平面图
2009年格雷厄姆·希尔在纽约买下了这处公寓,征集了全世界超过300套设计方案,最后将房子改造成功能强大的“变形公寓”。
餐桌、卧室、工作室、客厅、客房全在同一个空间里,还有容纳10人用餐的桌子,留宿两位客人的床。
这实用性超强的公寓一下子就火了。
大家赞赞赞不够,但格雷厄姆·希尔却已经开始向更极致迈进了。
卖掉了第一处公寓,格雷厄姆·希尔又搬到一个更小的公寓作为SOHO工作室,践行自己的理念去了。
这次公寓更小,挑战更大。
格雷厄姆·希尔还要和自己的合作伙伴外加一条狗分享这个豆腐块大小的空间。
平面图
客厅是公寓设计的重点,可以迅速从普通客厅秒变会议室。
桌子的台面可展开,桌脚也能伸缩,茶桌变身会议桌太轻松,整个空间气质都不同了。
只有两个功能还不够,
入夜休息时分,客厅又能变成卧室。在墙上“隐形”的床,往下来,旋出支架,成了舒适的憩息之地。
暂时不用到的餐桌水到渠成地待在床底。
虽然是还原到最简的生活,但设计的人性化仍然在。
床头壁柜下拉一块木板就是最简单的床头柜。
既然是为两人设计的居所,自然有第二个卧室。
布帘间隔开的空间,里面同样是自由灵活的空间。
精致简约的设计也是机关重重。
一块可活动的平板就是工作间。简单到连凳子都没有一张。
健康的站立办公模式。
沙发同样可以变形成床,布帘一拉就是私人空间。
虽然房子小,但两个主要空间里的采光都得到保证。
厨房和卫生间摒弃了一切不必要的设备和用具,呈现最简的线条和状态。
从厨卫的状态就能发现,
格雷厄姆·希尔并不是克制寡欲的卫道士,
而是尝试科学正确地处理物与人的关系。
因为心知自己不曾浪费所需之外的资源,
遂得以长夜安乐。
其实不是不重享受,
而是拥有的东西少了,享受得多了。